1 general data – Glow-worm Compact 80E User Manual
Page 7

7
221742D
A
B
C
D
E
F
G
H
J
K
L
M
N
P
450
700
300
100
75
138
142
18
135
65
110
138
85
103
1 General Data
6942
1.1 Installation
Materials and equipment should be fit for their purpose and of
suitable quality and workmanship.
1.2 Important Notice
This boiler is for use only on natural gas, G20.
1.3 Sheet Metal Parts
WARNING. When installing or servicing this boiler care should
be taken when handling the edges of sheet metal parts to avoid
any possibility of personal injury.
1.4 Requirements
The installation of this boiler must be carried out by a competent
person in accordance with the current rules in force in the
countries of destination at the time of installtion.
Manufacturer’s instructions, supplied.
Manufacturer’s instructions must not be taken as overriding
statutory requirements.
1.5 Data Label
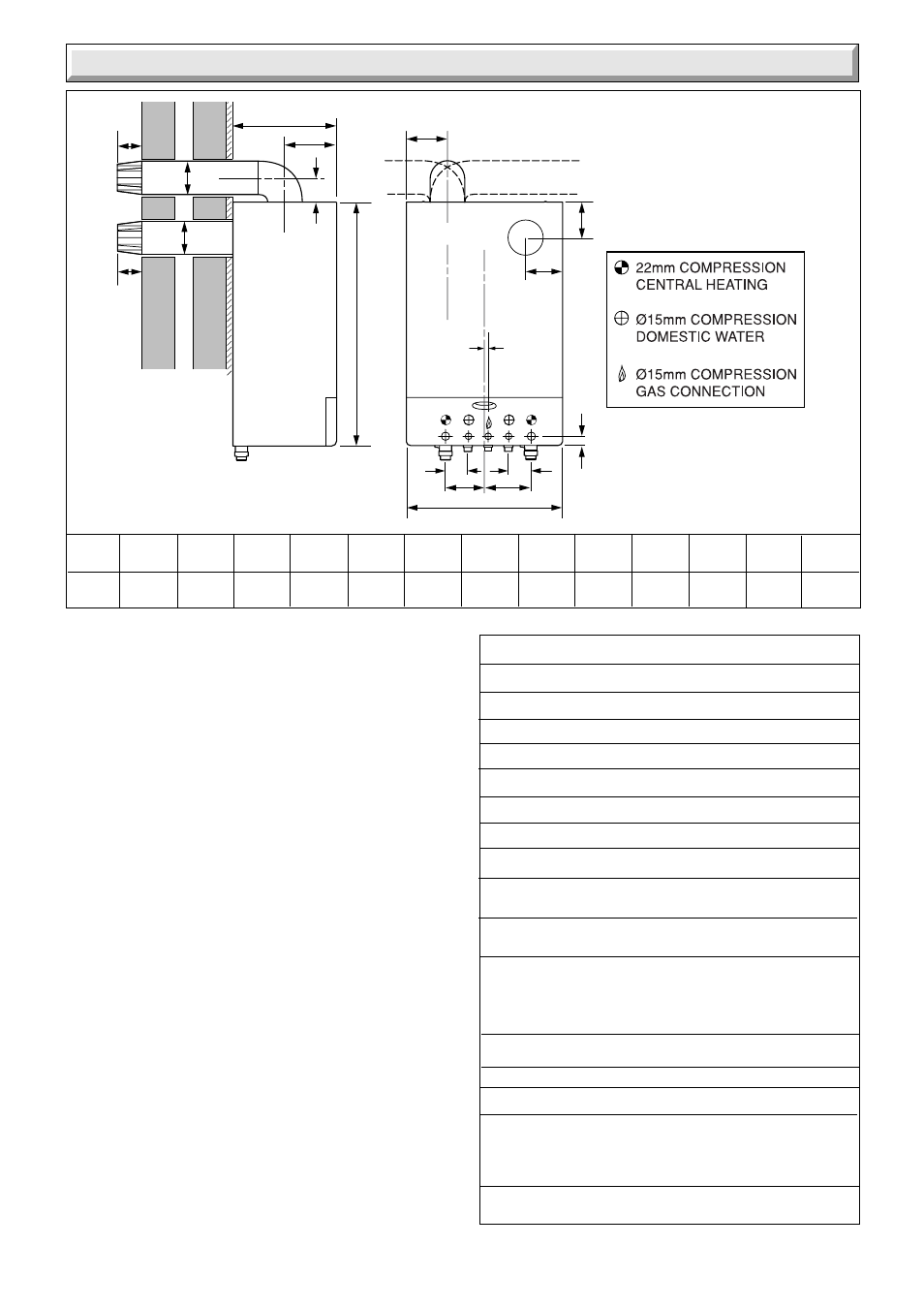
The data label is on the inner case front, see diagram 1.2.
1.6 Data
See table 1 and diagrams 1.1, 1.2. & 1.3.
The Seasonal Efficiency Domestic Boilers UK (SEDBUK) is
77.7%.
The value is used in the UK Government’s Standard Assessment
Procedure (SAP) for energy rating of dwellings. The test data
from which it has been calculated have been certified by B.S.I.
Diagram 1.1
Optional flue kits are available
Horizontal top outlet and Vertical.
Lift Weight
31.7kg (69.89b)
Total Weight
41.1kg (90.61lb)
Gas connection
Ø 15mm compression
Heating and return
Ø 22mm compression
Domestic hot water
Ø 15mm compression
Safety valve
Preset 3bar (43.5lbf/in
2
)
Safety valve discharge
Ø 15mm copper
Water content
1.42 litres (0.31 gallon)
■
Expansion vessel capacity
6 litres (1.32 gallons)
Heating cold fill
0.7bar
pressure minimum
(10.1lbf/in
2
)
❋
D.H.W
0.8 to 10bar
working pressure
■
Maximum Heating
60 litres
system water
(13.2 gallons)
content using
with a cold
fitted expansion
fill pressure
vessel.
of 0.7bar
Electrical supply
230V~50Hz
Electrical rating
150W fused 3A
Internal Fuse rating
1) Type T2A
TABLE 1
C
M
N
P
A
D
E
B
G
CL
CL
H
9mm
J
L
K
K
F
D
E
■ For larger systems use an additional expansion
vessel, see Section 4.
❋ Boiler starts at an inlet pressure of 0.5bar but
requires 0.8bar for maximum output.
Approximate gas
2.47m
3
/h
rate at max input
(87.17ft
3
/h)
