Model b36-bbb-su, Other technical information, Utility information – Blodgett B36- BBB-SU User Manual
Page 2

BLODGETT
www.blodgett.com
1100 Old Honeycutt Road Fuquay-Varina, NC 27526 USA • Phone: (877) 255-3976 • Fax: (866) 644-1354
MODEL B36-BBB-SU
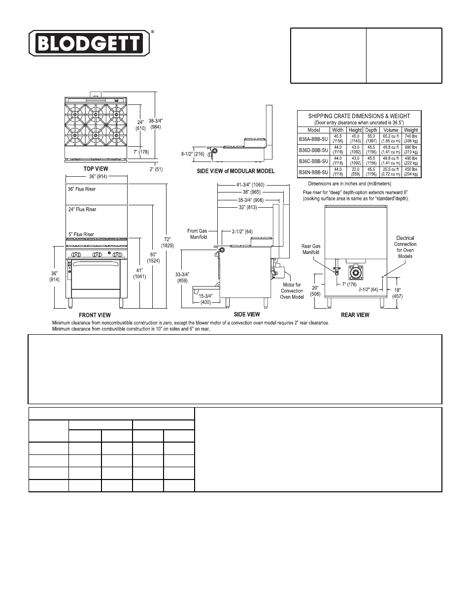
SHORT FORM SPECIFICATIONS
The item shall be a 36"-wide front-manifold sectional range with six 35,000 BTU open-top step-up burners with removable welded grates. The item shall have a 7" front rail and a belly
bar. The item shall have 6" adjustable legs [casters]. The item shall have a [5" 24" 36"] flue riser able to support 250 pounds. The exterior (except for the back) shall be constructed of
430 stainless steel #3 polish. If the item is at the end of a battery, the end side shall be solid (rather than have a coverplate over the end of the front manifold).
Model 36A: The item shall have a 45,000 BTU convection oven with standing pilot and a thermostat range of 150°F to 550°F (66°C to 288°C). The oven interior shall be porcelain, meas-
ure 14" high x 26" wide x 24" deep, and have two racks with five-position side-rails with 2-1/4" between positions. The blower fan shall have two speeds and a 1/3 hp motor.
Model 36D: The item shall have a 45,000 BTU standard oven with standing pilot and a thermostat range of 150°F to 550°F (66°C to 288°C). The oven interior shall be porcelain, meas-
ure 14" high x 26" wide x 26.5" deep, and have two racks with five-position side-rails with 2-1/4" between positions.
Model 36C: The item shall have a cabinet base with two side-by-side stainless steel doors.
Printed in U.S.A.
NOTE: FOR COMMERCIAL USE ONLY
NOTE: The company reserves the right to make substitutions of components without prior notice
APPROVAL/STAMP
P/N BR00025 Rev D (6/08)
OTHER TECHNICAL INFORMATION
Exterior surfaces are 430 stainless steel #3 polish, except the back is aluminized steel.
Each burner has a separate control knob located on the front panel. On oven models, a gas valve for the oven is located on the front panel above the oven. The oven control panel is
located to the left of the oven door and includes an on-off switch, indicator light, thermostat knob, and (on convection ovens) a speed selector switch for the blower motor. The fan
motor for convection ovens is 1/3 hp, 2-speed, 1725/1140 rpm, with overload protection. Check local codes for fire and sanitary regulations.
UTILITY INFORMATION
GAS: Each unit has a 1-1/4" front gas manifold that couples to the adjacent sectional unit(s), and can be
ordered with a 1" rear gas connection with a male NPT connector. Minimum supply pressure is 7" W.C. for
natural gas, 11" W.C. for propane. An external pressure regulator and shut off valve must be provided. If
using a flexible-hose gas connection, the I.D. of the hose must not be smaller than the connector on the unit
and must comply with ANSI Z21.69. Provide an adequate means of restraint to prevent undue strain on the
gas connection.
ELECTRICITY: Both standard-oven and convection-oven models require electric power (50Hz or 60Hz sin-
gle-phase AC). 120V models have a 7-foot (2134 mm) power cord with a grounded plug. 208/240V models
have a terminal block for connection to a single-phase 208/240V source.
FLUE EXHAUST: Installation under a vented hood is recommended.
MODEL
GAS (BTU/hr)
ELECTRICITY (amp)
Natural Gas
Propane
120V
208/240V
B36A-BBB-SU
255,000
222,000
4.8
2.6
B36D-BBB-SU
255,000
222,000
1.0
1.0
B36C-BBB-SU
210,000
180,000
-
-
B36N-BBB-SU
210,000
180,000
-
-
