Relay – Wesley BC-6200-8SA User Manual
Page 14

8
Curtis 1268 Manual,
Rev. D
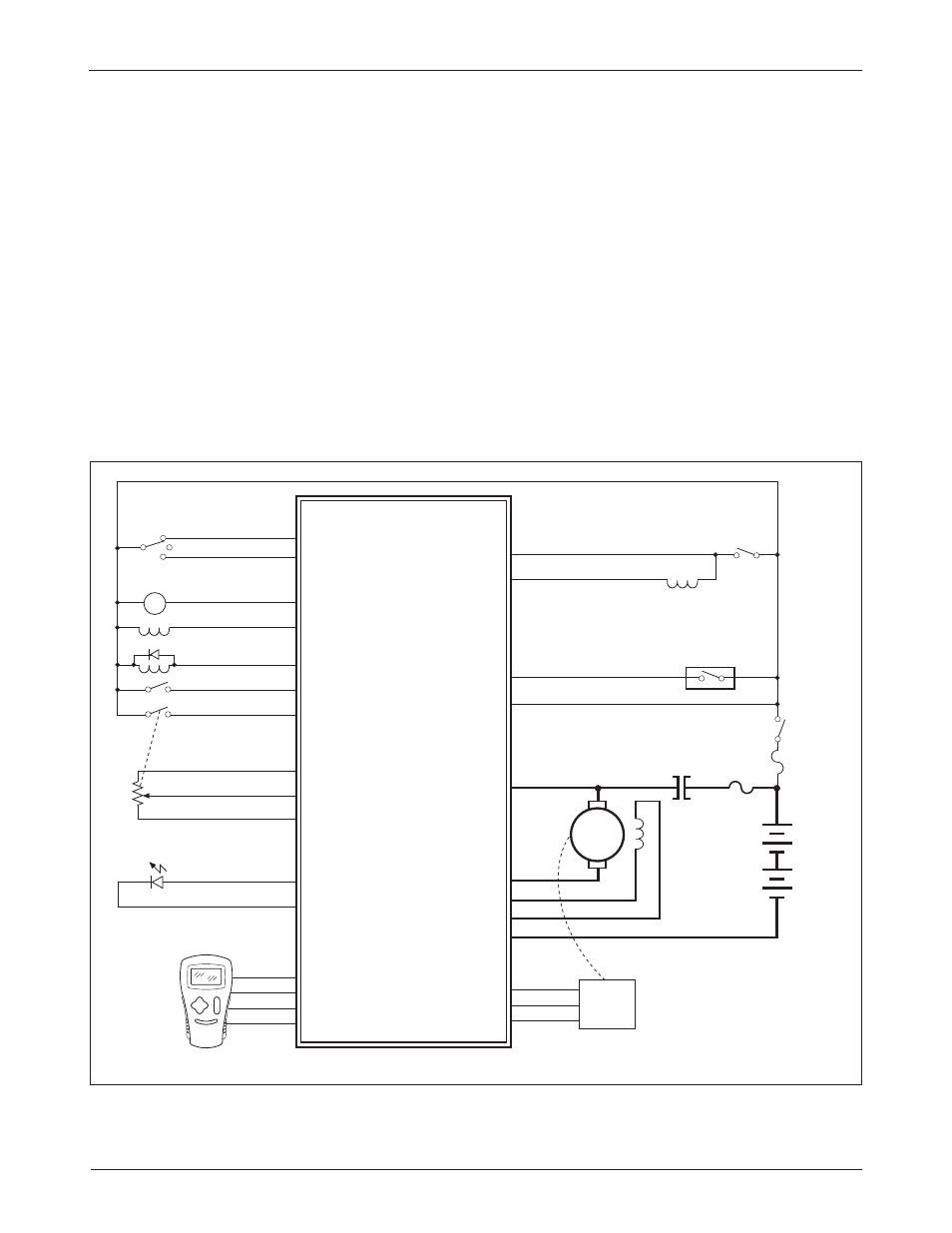
WIRING: Standard Configuration
Figures 3a and 3b show typical wiring. The system can include an electromag-
netic brake or a WalkAway
™
relay, but not both. Figure 3a shows a system with
an EM brake; Figure 3b shows a system with a WalkAway
™
relay.
Standard Power Wiring
Motor armature winding is straightforward, with the armature’s
A1
connection
going to the controller’s B+ bus bar and the armature’s
A2
connection going
to the controller’s M- bus bar.
The motor’s field connections (
F1
and
F2
) to the controller are less
obvious. The direction of vehicle travel with the forward direction selected
will depend on how the
F1
and
F2
connections are made to the controller’s
two field terminals and how the motor shaft is connected to the drive wheels
through the vehicle’s drive train.
Fig. 3a
Standard wiring configuration for Curtis 1268 controller,
in an application with an EM brake.
2 — INSTALLATION & WIRING:
Controller
1268 CONTROLLER
PEDAL INTERLOCK
BRAKE LIGHT RELAY
J1-20
MODE (M1, M2)
J1-18
REVERSE ALARM
J1-19
EM BRAKE
J1-23
POT HIGH
J1-13
POT WIPER
J1-15
POT LOW
J1-14
THR
O
TTLE PO
T
A
MAIN
REVERSE
FORWARD
J1-1
KSI
SPEED
SENSOR
J2-4
J2-5
J2-6
BATTERY
RUN/
STORE
SWITCH
(10 A)
B+
GROUND
+15V
M-
INPUT
B-
A1
A2
J3-1
J3-2
J3-3
PR
OGRAMMER
RX DATA
TX DATA
B-
J3-4
+15V
F1
F2
F1
F2
KEYSWITCH
J1-10
F
R
N
J1-11
J1-17
MAIN CONTACTOR
J1-16
J1-22
LED DRIVER
+
-
J1-2
J1-4
LOGIC ENABLE
LOGIC POWER
CHARGER INTERLOCK
SWITCH
(optional)
J1-8
GROUND
- BC-6200-8CA BC-6000-8SA BC-6000-8CA BC-6200-8SAC BC-6250-8SA BC-6250-8CA BC-620-8SA BC-620-8CA BC-600-8SA BC-600-8CA BC-625-8SA BC-625-8CA SCT-7750-8AC SCT-7750-8SA SCT-7750-8CA SCT-7750-6AC SCT-7750-8AC-MTR SCT-7750-8CA-MTR PC-325-6SA PC-325-6CA PMT-5000-8CA PMT-5000-8SA PMT-4500-8SA PMT-4500-8CA SC-775-8CA SC-775-8SA SC-775-8AC
