Directory
Brands
Avanti manuals
Refrigerators
RA317WT
Manual

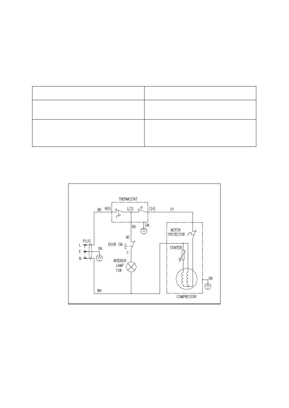
Service for your appliance, Wiring diagram – Avanti RA317WT User Manual

Page 12

  • Text mode
  • Original mode
Service for your appliance, Wiring diagram | Avanti RA317WT User Manual | Page 12 / 20 Service for your appliance, Wiring diagram | Avanti RA317WT User Manual | Page 12 / 20
Pages: 1 … 10 11 12 13 14 … 20
  • wrong Brand
  • wrong Model
  • non readable
This manual is related to the following products:
  • RA317SST RA316WT RA316BT RA315WT
See also other documents in the category Avanti Refrigerators:
  • FF8SSR (19 pages)
  • SHP1702SS (16 pages)
  • BCA1800W (18 pages)
  • BCA1501SS (20 pages)
  • RM3154SS (16 pages)
  • WC1000 (13 pages)
  • RA751WT (20 pages)
  • BCA4562SS (2 pages)
  • OBC32SS (29 pages)
  • BCA3281B-1 (16 pages)
  • 261YGW/YGB (15 pages)
  • RM1700W1 (16 pages)
  • FF12Y (20 pages)
  • BCAD680 (19 pages)
  • RA757PST (24 pages)
  • RF171PSS (18 pages)
  • 391WT (19 pages)
  • RM4550W (2 pages)
  • RM3251B-1 (16 pages)
  • BCA3190W (16 pages)
  • FF448PS (20 pages)
  • 322YW (2 pages)
  • WCR5404DZD (20 pages)
  • FF100 (17 pages)
  • RM1711B (18 pages)
  • EWC8TV (16 pages)
  • RM3423SS (16 pages)
  • WC34TM (16 pages)
  • BCA193BG (16 pages)
  • BCA57SSR (20 pages)
  • EWC280B (2 pages)
  • EWC1601B (16 pages)
  • EWC18DZ (16 pages)
  • 519XSSL (14 pages)
  • BCA1811B (16 pages)
  • FF1009 (3 pages)
  • SHP2501B (16 pages)
  • RM4489SS (18 pages)
  • EC150B (16 pages)
  • REFRIDGERATOR-FREEZER RA3102PST (20 pages)
  • BCA5003PS (16 pages)
  • WCR5104DZD (23 pages)
  • WCR520AS (24 pages)
  • EC15W-2 (15 pages)
  • SWBC250D (17 pages)
Home Brands Popular manuals Recently added
Manuals Directory

© 2012–2025, azmanual.top
All rights reserved.