Diagrammes de câblage, Power mig, Séquence de numération de cavité – Lincoln Electric IM10096 POWER MIG 256 User Manual
Page 32: Séquence de numération de la cavité, A. 0 1, Ensemble du temporisateur installé en usine

F-2
F-2
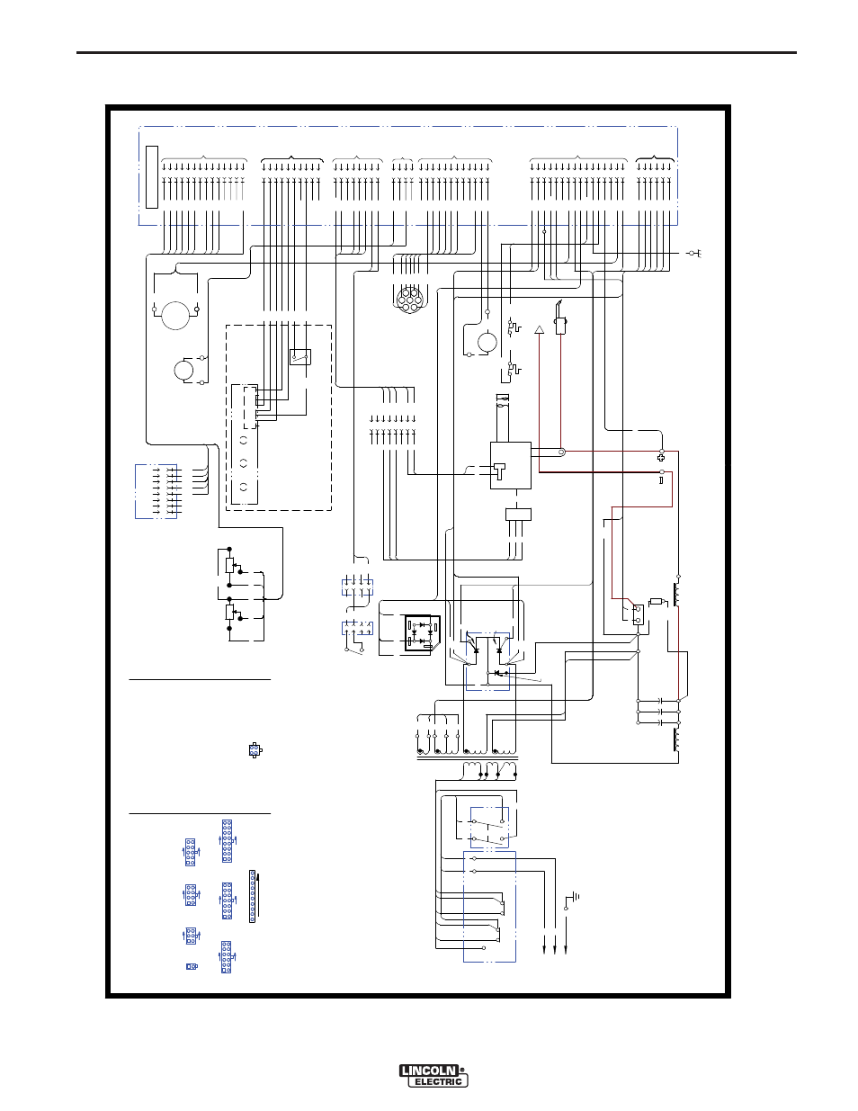
DIAGRAMMES DE CÂBLAGE
NOTE : Ce diagramme a valeur de référence uniquement. Il peut ne pas être exact pour toutes les machines couvertes par ce manue
l. Le diagramme spécifique pour un code particulier est collé à lʼintérieur
de la machine sur lʼun des panneaux de la console. Si le diagramme est illisible, écrire au Département de Service afin dʼen ob
tenir un autre en remplacement. Donner le numéro de code de lʼappareil.
L125
06-2
CODE DE COULEUR:
SYMBOLES ÉLECTRIQUES D’APRÈS E1537
INFORMATION GÉNÉRALE
26
5
26
3
26
0
26
1
U -
BLEU
R -
ROUGE
W
-
BLANC
B -
NOIR
INDIQUE LE No. DE CAVITÉ DU CONNECTEUR
26
2
26
7
26
4
ÉTRANGLEUR DE SORTIE
ÉTRANGLEUR D’AUGMENTATION DU FACTEUR DE PUISSANCE
204
B
LES TENSIONS SECONDAIRES ILLUSTRÉES
SONT DES VALEURS RMS SANS CHARGE
MOTEUR DU GALET D’ENTRAÎNEMENT /
BOÎTE D’ENGRENAGES
C3
C1
20
5
20
6
S
20
6B
R1
THERMOSTAT DE
L’ENSEMBLE DISSIPATEUR
DU RCS
1
16.
6V
14
.2
V
14
.2
V
28
.4
V
C2
+
+
+
C1
À
C3
31
,0
00 M
F
D
50
V
15
O
H
M
S
10
0 W
B
+
-
320
B
1
J10
J1
0
39
0
39
2
J1
J4
J6
J8
J9
J7
10
J2
J5
1
3
J3
SÉQUENCE DE NUMÉRATION DE LA CAVITÉ
(CÔTÉ COMPOSANTS DU TABLEAU DE CIRCUITS IMPRIMÉS)
25
1
20
6
28
.4
V
W
T
A
C
H
ENSEMBLE DISSIPATEUR RCS
S
CR 2
G1
G2
S
CR 1
25
2
R3
25
6
8
6
5
1
254
25
3
R4
25
4A
550
551
4
2
7
3
TABLEAU
D’AFFICHAGE
515
552
500
TRANSFORMATEUR DE PUISSANCE
G2
VITESSE DE
DÉVIDAGE
G2G2
-
+
208
R
209
R
209
R
208
R
35
4
1
2
3
4
32
5
32
4
325
4
2
GÂCHETTE
DU PISTOLET
32
4
5
2
3
2
4
1
2
3
2
5
5
2
3
4
7
11
6
3
8
9
2
5
4
J8
25
2
55
0
25
4
50
0
J4
4
7
6
14
11
1
J5
J6
1
1
11
10
9
8
6
GN
D
X6
X5
51
5
20
6B
B
2
3
4
7
8
9
10
3
5
20
6
20
5
32
0
8
6
14
15
16
6
5
W
20
6S
20
7
35
3
X8
32
5B
X9
35
2
4
10
12
13
7
12
35
4
G2
204
G1
X7
39
0
32
5
55
5
1
J2
6
7
8
9
J1
10
1
51
5B
32
4
20
8
12
13
1
J3
25
3
25
1
55
2
55
1
25
6
20
9
GN
D
35
2
35
3
515
B
555
206
B
G2
X2
D1
209
X8
D2
PONT DE DIODE DU REDRESSEUR
MONTÉ SUR DÉFLECTEUR
208
20
4
X3
X4
207
X9
X5
X5
X6
X6
X7
X7
X1
X9
X8
G2
35
2
35
3
MOTEUR DU
VENTILATEUR
J3
207
TENSION
DE L’ARC
325
B
THERMOSTAT DE L’ÉTRANGLEUR DE SORTIE
32
0
B
R
U
J11
**
N
.A.
LE CÂBLE DE SOUDAGE DOIT ÊTRE DE LA CAPACITÉ APPROPRIÉE
POUR LE COURANT ET LE FACTEUR DE MARCHE DES APPLICATIONS IMMÉDIATES ET FUTURES.
NOTE
S:
N
.B
. CE DIAGRAMME ILLUSTRE LA POLARITÉ « POSITIVE » DE L’ÉLECTRODE.
POUR CHANGER DE POLARITÉ, ÉTEINDRE L’APPAREIL ET INVERSER LES BRANCHEMENTS DES FILS AU NIVEAU DE LA BARRETTE DU CONDUCTEUR DU CÂBLE ET DE LA BORNE DE TRAVAIL.
SOLÉNOÏDE
DE GAZ
TABLEAU DE CONTRÔLE
2
1
5
8
4
1
8
1
9
16
1
3
4
6
8
1
14
7
1
12
7
6
10
6
5
1
SÉQUENCE
DE NUMÉRATION DE CAVITÉ
1
**
(CÔTÉ SANS FIL DU CONNECTEUR)
2
3
4
J11
1
2
3
8
7
6
5
4
W
B
B
R
U
W
B
J12
J12
311
SOLÉNOÏDE
DE GAZ
3
39
2
4
E
F
A
B
C
D
G
76
4
2
75
3218
3214
77
AMPHÉNOL POUR
PISTOLET
À
BOBINE /
PISTOLET POUSSER-TIRER
(VUE DE L’ARRIÈRE)
31
2
31
2
31
1
77
76
75
3218
3214
4
2
20
9R
208
R
À LA MASSE SELON LE CODE ÉLECTRIQUE NATIONAL
G
H2
5
4
2
1
3
VERS LIGNE D’ALIMENTATION MONPHASÉE
H1
H3
H4
W
B
H5
H2
L2
L1
H1
H1
H3
H4
PANNEAU DE RECONNEXION (ILLUSTRÉ BRANCHÉ POUR 230V)
INTERRUPTEUR DE LIGNE S1
L2
L1
H5
H1
H4
H1
H4H4
H1
H4
H1
A.
0
1
POWER MIG 256 (230/460V/575V) POUR CODE 11781
261A
TCI TEMPORISATEUR
INTERRUPTEUR DU
TEMPORISATEUR
1
2
3
4
5
6
7
8
ENSEMBLE DU TEMPORISATEUR INSTALLÉ EN USINE
VERS LE TRA
VAIL
POWER MIG
®
256
