External i/o specifications, 1 npn specification, Caution – IAI America XSEL-KE User Manual
Page 38

23
Part 1 Installation
2. External I/O Specifications
2.1 NPN
Specification
(1) Input
part
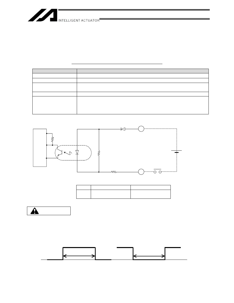
External Input Specifications (NPN Specification)
Item
Specification
Input voltage
24 VDC
r10%
Input current
7 mA per circuit
ON/OFF voltage
ON voltage --- 16.0 VDC min.
OFF voltage --- 5.0 VDC max.
Isolation method
Photocoupler isolation
External devices
(1) No-voltage contact (minimum load of approx. 5 VDC/1 mA)
(2) Photoelectric/proximity
sensor
(NPN
type)
(3) Sequencer
transistor
output (open-collector type)
(4) Sequencer contact output (minimum load of approx. 5 VDC/1 mA)
[Input circuit]
*
General
purpose
Compact
P24
I/O24V connector
24V IN
I/O interface pin No. 1
Caution
If a non-contact circuit is connected externally, malfunction may result from leakage
current. Use a circuit in which leakage current in a switch-off state does not exceed
1 mA.
;6(/FRQWUROOHU¶VLQSXWVLJQDO
At the default settings, the system recognizes the ON/OFF durations of input signals if they
are approx. 4 msec or longer. The ON/OFF duration settings can also be changed using I/O
parameter No. 20 (input filtering frequency).
Internal circuit
Input terminal
External power
supply 24 VDC
10%
ON duration
OFF duration
P24*
+
-
560
:
3.3 K
:
