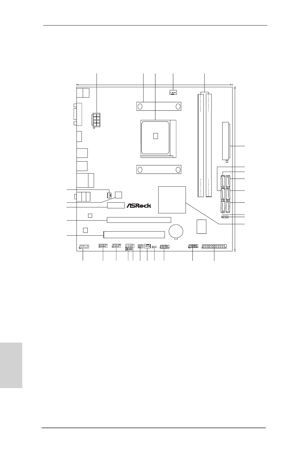
Motherboard layout, English, Asrock a75m-hvs motherboard – ASRock A75M-HVS User Manual
Page 2: So c k et fm 1, A75m-hvs, Fs b 8 0 0, Amd a75 fch (hudson-d3) chipset, Dx 11

2
ASRock A75M-HVS Motherboard
English
Motherboard Layout
1
ATX 12V Power Connector (ATX12V1)
16
COM Port Header (COM1)
2
CPU Heatsink Retention Module
17
System Panel Header (PANEL1, White)
3
CPU Socket
18
Clear CMOS Jumper (CLRCMOS1)
4
CPU Fan Connector (CPU_FAN1)
19
Chassis Fan Connector (CHA_FAN1)
5
2 x 240-pin DDR3 DIMM Slots
20
Infrared Module Header (IR1)
(Dual Channel: DDR3_A1, DDR3_B1; Blue)
21
USB 2.0 Header (USB6_7, Blue)
6
ATX Power Connector (ATXPWR1)
22
Consumer Infrared Module Header (CIR1)
7
SATA3 Connector (SATA_3, White)
23
USB 2.0 Header (USB8_9, Blue)
8
SATA3 Connector (SATA_5, White)
24
USB 2.0 Header (USB10_11, Blue)
9
SATA3 Connector (SATA_6, White)
25
Front Panel Audio Header (HD_AUDIO1, White)
10
SATA3 Connector (SATA_4, White)
26
PCI Slot (PCI1)
11
SATA3 Connector (SATA_2, White)
27
PCI Express 2.0 x16 Slot (PCIE2; Blue)
12
SATA3 Connector (SATA_1, White)
28
PCI Express 2.0 x1 Slot (PCIE1; White)
13
Chassis Speaker Header (SPEAKER 1, White) 29
SPI Flash Memory (32Mb)
14
Southbridge Controller
30
Power Fan Connector (PWR_FAN1)
15
Print Port Header (LPT1, White)
Super
I/O
CMOS
BATTERY
A
T
X
P
W
R
1
AMD
A75 FCH
(Hudson-D3)
Chipset
COM1
PCIE1
PCI1
LAN
AUDIO
CODEC
1
CLRCMOS1
1
CPU_FAN1
HDLED
RESET
PLED PWRBTN
1
PANEL 1
CHA_FAN1
SPEAKER1
1
HD_AUDIO1
1
2
2
.6
c
m
(8
.9
-i
n
)
21.6cm (8.5-in)
6
7
1
2
4
3
5
8
9
10
11
12
13
14
15
16
17
18
19
20
21
22
23
24
25
26
27
28
29
32Mb
BIOS
IR1
1
PCIE2
F
S
B
8
0
0
D
D
R
3
_
A
1
(6
4
b
it
,
2
4
0
-p
in
m
o
d
u
le
)
D
D
R
3
_
B
1
(6
4
b
it
,
2
4
0
-p
in
m
o
d
u
le
)
S
A
TA
_
2
H
D
M
I1
T
o
p
:
L
IN
E
IN
C
e
n
te
r
:
F
R
O
N
T
B
o
tt
o
m
:
M
IC
IN
R
J
-4
5
L
A
N
1
1
1
USB6_7
USB8_9
USB10_11
PWR_FAN1
A75M-HVS
ErP/EuP Ready
D
es
ig
n
ed
in
Ta
ip
ei
RoHS
D
D
R
3
2
4
0
0
+
D
X
11
USB 2.0
T: USB0
B: USB1
CIR1
1
SO
C
K
ET
FM
1
S
A
TA
_
1
S
A
TA
_
4
S
A
TA
_
3
1
LPT1
ATX12V1
H
D
M
I
1
.4
a
P
S
2
M
o
u
s
e
P
S
2
K
e
y
b
o
a
rd
V
G
A
1
USB 3.0
T: USB2
B: USB3
30
S
A
TA
_
6
S
A
TA
_
5
USB 3.0
T: USB4
B: USB5
Dual Graphics
X
F
a
s
t
U
S
B
SATA3 6Gb/s
USB 3.0
