Česky, 3 přívod vzduchu, 4 strop – Jotul I570 User Manual
Page 80: 5 komín a kouřovod

80
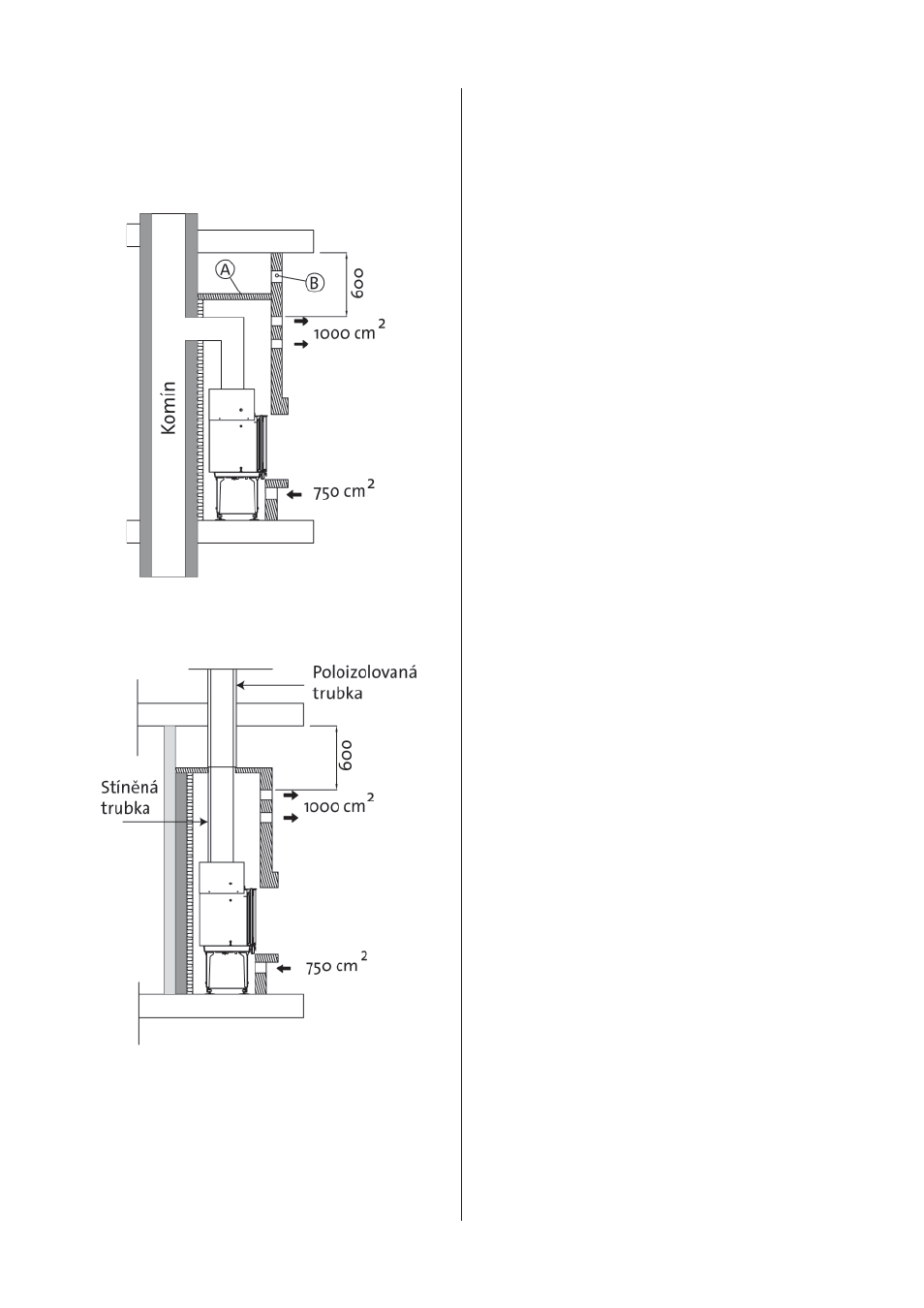
3.3 Přívod vzduchu
Obr. 2
Mezi krbovou vložkou a zdivem musí proudit vzduch, proto je
velmi důležité, aby do horní a spodní části vložky byl volný přívod
vzduchu.
Rozměry přívodu vzduchu uvedené v textu jsou udány v
minimálních hodnotách.
Minimální rozměry ventilačních otvorů (pro cirkulaci vzduchu):
Nasávací otvor (pod krbovou vložkou):
odvětrávání min. 750 cm
2
Výdechový otvor (v dýmníku):
odvětrávání min. 1000 cm
2
Toto jsou bezpečnostní opatření, aby se zabránilo přehřívání
uvnitř obestavby a aby bylo zároveň umožněno dostatečné
vyzařování tepla do místnosti.
Pokud je v domě špatná ventilace, je nutné místnost, ve které
je krb, vybavit dodatečnou ventilací, např. přivést vzduch
samostatným kanálem přímo ke spodní části krbu. Tento kanál
by měl být co nejpřímější a musí být vyroben z nehořlavého
materiálu. Je nutné opatřit tento kanál klapkou, která rouru
uzavře, když se krb zrovna nebude používat, aby tudy nepronikal
dovnitř chladný vzduch.
3.4 Strop
Vzdálenost horní hrany kouřovodu od stropu z hořlavého
materiálu musí být minimálně 600 mm. Ujistěte se, že v horní
části sopouchu je zajištěna adekvátní ventilace – např. otvor pod
stropem.
3.5 Komín a kouřovod
•
Topeniště je možné připojit ke komínu a rourám, které jsou
určené pro topeniště na pevná paliva a vhodné pro teplotu
specifikovanou v „2.0 Technické údaje“.
•
Komín musí mít minimálně stejný průměr jako kouřovod. Pro
vypočítání správného průměru komína srov. „2.0 Technické
údaje“.
•
Krb musí být napojený k vlastnímu, samostatnému komínu.
Před instalací je nutná revize komínu. Připojení ke komínu je
nutné provést podle instalačních pokynů výrobce komína.
• Než do komína uděláte otvor, je potřeba topeniště na
zkoušku nainstalovat, abyste mohli přesně označit jeho
polohu a správné umístění otvoru do komína. Pro minimální
vzdálenosti srov. obr. 1.
•
Kouřovod po celé délce až k zaústění do komína musí alespoň
v mírném úhlu stoupat.
•
Použijte koleno s čistícím otvorem, který umožňuje kouřovod
vymetat.
•
Připojení krbové vložky musí zachovat určitou flexibilitu, aby
během instalace, kdy se s topeništěm ještě hýbe, nedošlo k
popraskání materiálu.
• Požadovaný tah komínu najdete v „2.0 Technické údaje“.
Požadavky na rozměry kouřovodu a jeho průměr viz rovněž
„2.0 Technické údaje“.
Upozornění: Minimální doporučená délka komínu je 3,5 m od
příruby krbové vložky. Pokud je tah příliš velký, je možné používat
regulační klapku tahu (příslušenství na objednávku) nebo
regulátor tahu (instaluje montážní firma).
„Váha krbové konstrukce se nesmí přenášet na komín. Krbová
konstrukce nesmí bránit komínu v pohybu a nesmí být ke komínu
ukotvena.“
ČESKY
