York PREDATOR BP 090 User Manual
Page 28

259336-YTG-B-0606
28
Unitary Products Group
.
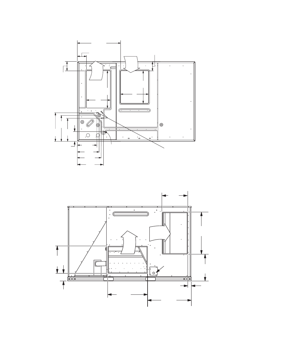
FIGURE 8 - BOTTOM DUCT OPENINGS (FROM ABOVE)
S U P P L Y
A IR
R E T U R N
A IR
3 2 - 1 1 /1 6
( 8 3 0 )
6 - 1 3 /1 6
( 1 7 5 )
6 - 1 3 /1 6
( 1 7 5 )
2 7 - 1 /2
( 7 0 0 )
1 8
( 4 5 5 )
2 1 - 3 /1 6
( 5 4 0 )
1 9 - 3 /1 6
( 4 8 5 )
1 7 - 3 /1 6
( 4 3 5 )
1 4 - 2 3 /3 2
( 3 7 5 )
1 6 - 3 /8
( 4 1 5 )
1 8 - 1 /1 6
( 4 6 0 )
1 9 - 5 /8
( 4 9 8 )
6 - 1 3 /1 6
( 1 7 5 )
2 4
( 6 1 0 )
2 1
( 5 3 5 )
L E F T
B o tto m P o w e r ,
C o n tr o l a n d
C o n v e n i e n c e
O u tl e tW i r i n g
E n tr y
N O T E : ( X X X ) IN D IC A T E S
D IM E N S IO N S IN
M IL L IM E T E R S
F R O N T
B o tto m C o n d e n s a te
L o c a ti o n
7 - 1 /8
( 1 8 1 )
FIGURE 9 - REAR DUCT DIMENSIONS
N O T E : ( X X X ) i n d i c a t e s m i l l i m e t e r s
P a t c h P l a t e
F o r S l i d e - O u t
D r a i n P a n
1 8 - 1 / 4
( 4 6 5 )
5 - 5 / 3 2
( 1 3 0 )
2 8 - 1 / 4
( 7 2 0 )
3 1 - 1 1 / 1 6
( 8 0 5 )
2 - 3 1 / 3 2
( 7 5 )
1 8 - 1 / 1 6
( 4 6 0 )
2 8 - 1 / 4
( 7 2 0 )
1 8 - 1 / 4
( 4 6 5 )
R e t u r n
A i r
S u p p l y
A i r
