Thomas & Betts 9395 User Manual

Page 30

background image


UPS 225 - 275 kVA

User’s and Installation Guide

1027212

Revision B

30

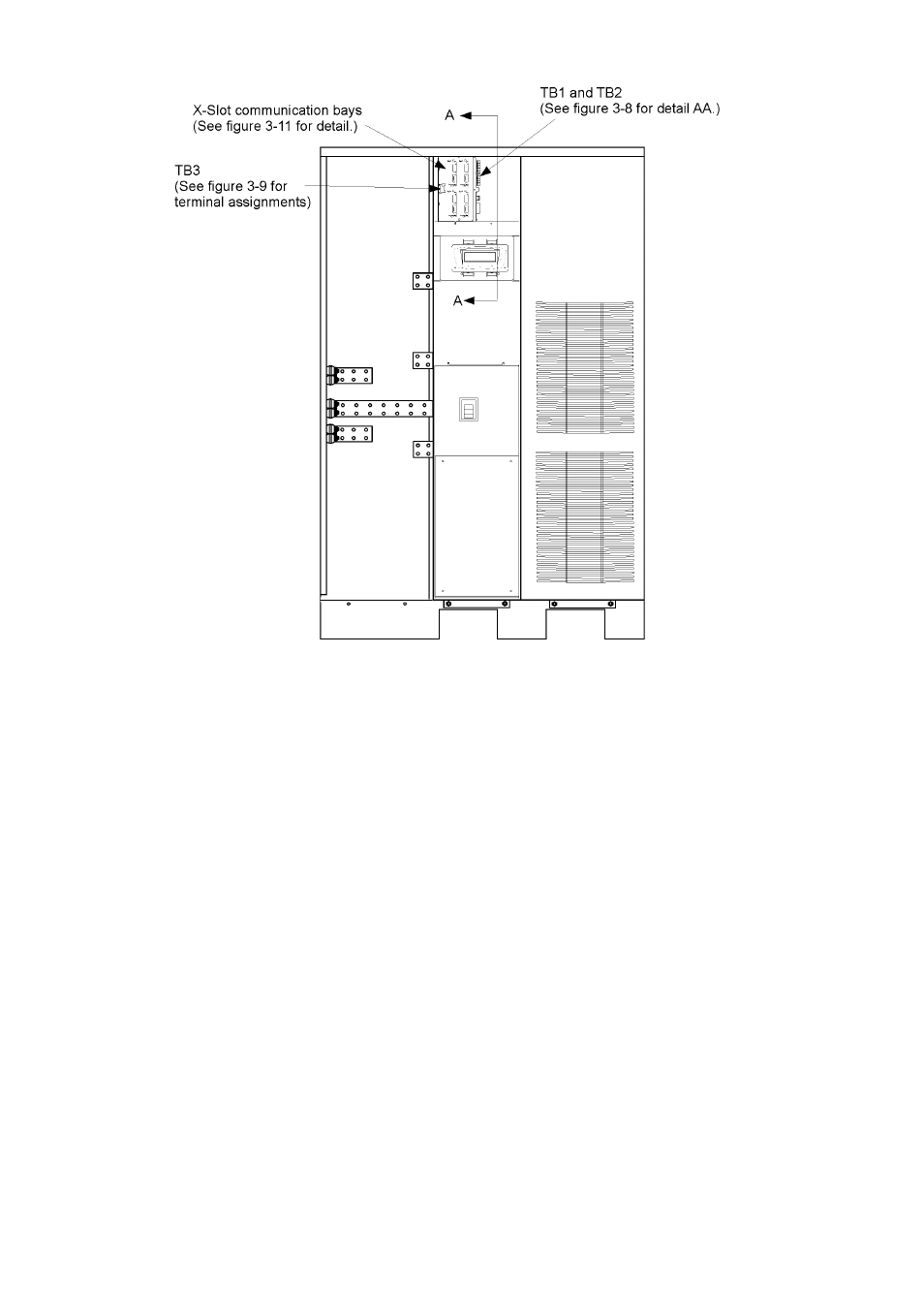
Figure 3-7. Interface terminal locations