Search
Directory
Brands
Graham Field manuals
Tools
LF1030
Manual
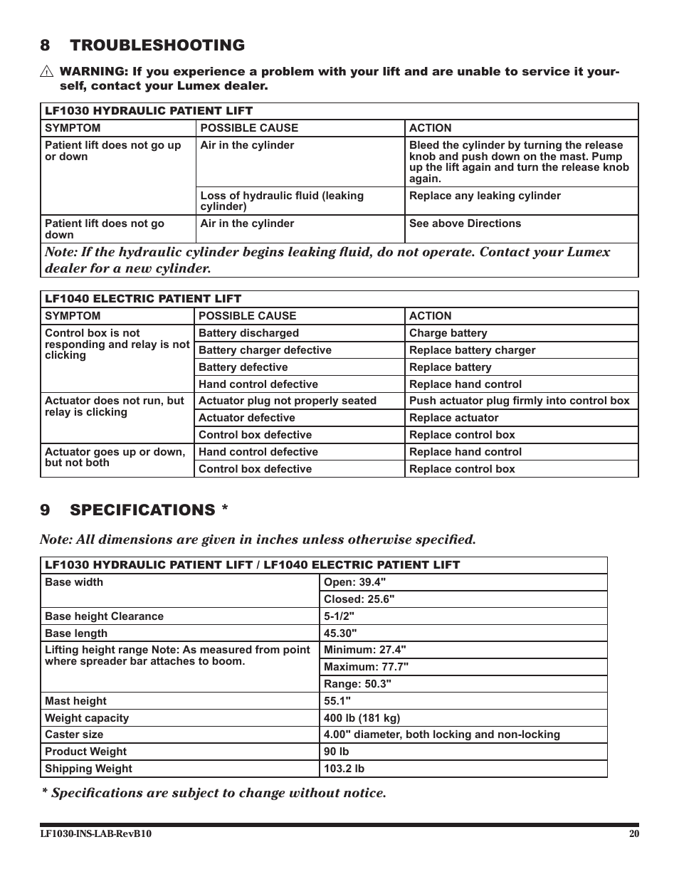
8 troubleshooting, 9 specifications – Graham Field LF1030 User Manual
Page 20
Text mode
Original mode
8 troubleshooting, 9 specifications | Graham Field LF1030 User Manual | Page 20 / 24
Pages:
1
…
18
19
20
21
22
…
24
wrong Brand
wrong Model
non readable
This manual is related to the following products:
LF1040
See also other documents in the category Graham Field Tools:
PATRIOT US0208PL
(28 pages)
LUMEX LF1030
(28 pages)
LF1090
(1 page)
WHISPER LITE WL0208
(1 page)