Search
Directory
Brands
LG manuals
Stoves
30 Inch Double Oven Gas Range Owners Manual
Manual
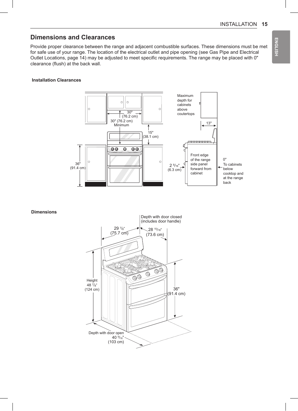
Dimensions and clearances, 15 installation – LG 30 Inch Double Oven Gas Range Owners Manual User Manual
Page 15
Text mode
Original mode
Dimensions and clearances, 15 installation | LG 30 Inch Double Oven Gas Range Owners Manual User Manual | Page 15 / 120
Pages:
1
…
13
14
15
16
17
…
120
wrong Brand
wrong Model
non readable
See also other documents in the category LG Stoves:
30 Inch Electric Slide-In Smart Range Owner Manual
(164 pages)
Studio 30 Inch Slide-In Gas Smart Range Owners Manual
(172 pages)