Pilz SET3.1: PIT es3.1 / 2 n/c User Manual
Page 9
This manual is related to the following products:
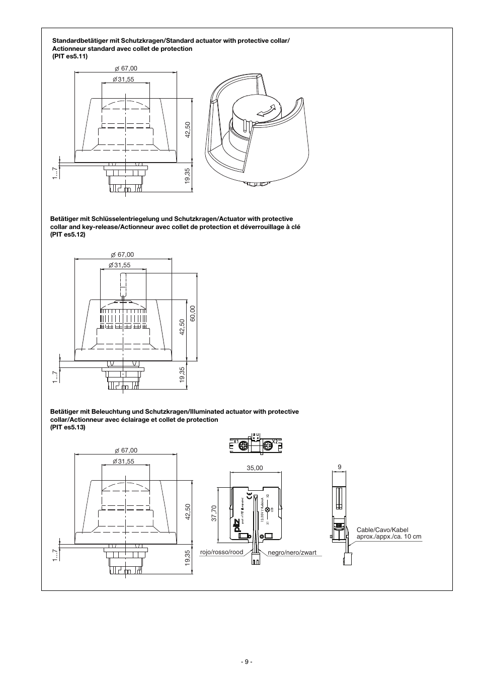
- SET3.2: PIT es3.1 / 2 n/c 1 n/o SET4.1: PIT es3.1 / box / 2 n/c SET4.2: PIT es3.1 / box / 2 n/c 1 n/o PIT es Set6.1: es6.10 / 2n/c PIT es1.11 operator red PIT es1.13 operator illuminated red PIT es1.11 operator black PIT es2.12 key-operator black PIT es2.13 operator illuminated black PIT es5.12 key operator protect PIT es box 72 x 72 x 61 mm
