General installation guidelines, Front top front top – FRIGIDAIRE FFGF3011LB User Manual
Page 5

Specifications
subject to change.
USA
•
10200 David Taylor Drive
•
Charlotte, NC 28262
•
1-800-FRIGIDAIRE
•
frigidaire.com
CANADA
•
5855 Terry Fox Way
•
Mississauga, ON L5V 3E4
•
1-800-265-8352
•
frigidaire.ca
INSTGDLNS_TMR FR 02/12
© 2012 Electrolux Home Products, Inc.
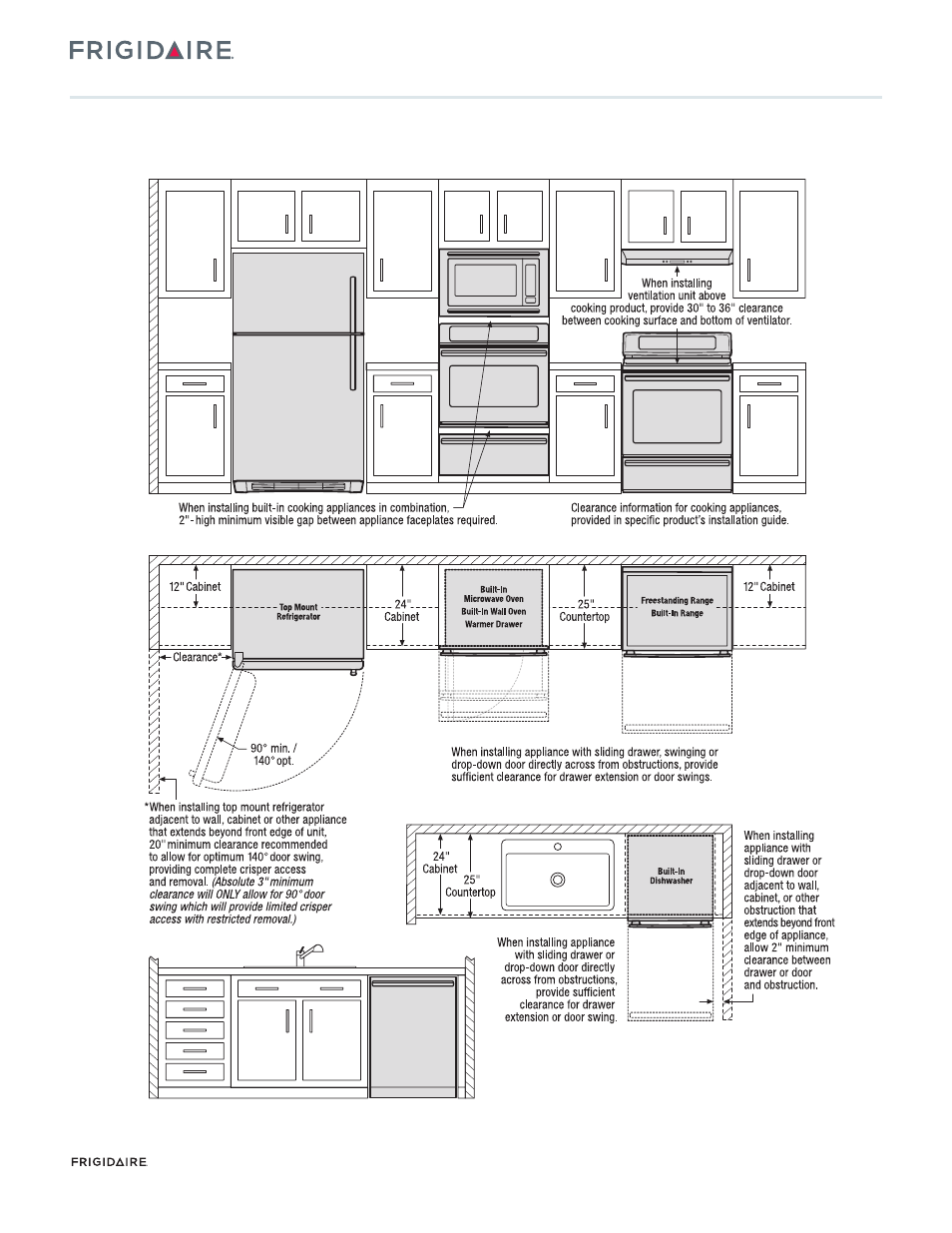
Use these dimensions and clearance instructions for planning purposes only. For detailed installation
instructions, refer to installation guide, packed with product, or on the web at frigidaire.com.
Front
Top
Front
Top
General Installation Guidelines
with Top Mount Refrigerator
This manual is related to the following products:
See also other documents in the category FRIGIDAIRE Kitchen:
- FFHS2322MW (2 pages)
- FFSS2614QE (4 pages)
- FFHS2322MW (2 pages)
- FFHS2322MW (30 pages)
- FGDS3065KW (7 pages)
- FGDS3065KW (40 pages)
- FGDS3065KW (40 pages)
- FGTR1845QE (1 page)
- FFHT1514QW (2 pages)
- FFTR1521QW (2 pages)
- FFTR1521QW (4 pages)
- FGTR1845QE (19 pages)
- FGBD2445NF (16 pages)
- FFBD2411NQ (2 pages)
- FGBD2438PW (2 pages)
- FGBD2438PW (7 pages)
- FEB24S5AB (24 pages)
- FEB24S5AB (6 pages)
- FEB24S5AB (16 pages)
- FEB24S5AB (16 pages)
- FEB24S5AB (1 page)
- FFEC3603LW (16 pages)
- FFEC3205LS (5 pages)
- FFEC3205LS (20 pages)
- FFHB2740PS (2 pages)
- FFHB2740PS (41 pages)
- FGHN2844LF (1 page)
- FFTR1814QB (3 pages)
- FFHT1831QM (2 pages)
- FFTR1814QB (2 pages)
- FGEW3065KB (2 pages)
- FGEW2765KB (12 pages)
- FGEW3065KB (24 pages)
- FGEW3065KB (32 pages)
- FGHT2046QF (2 pages)
- FGHT2046QF (4 pages)
- FFPE4522QM (2 pages)
- FFPE4522QM (2 pages)
- FFPE4522QM (10 pages)
- FGEF3032MF (2 pages)
- FGEF3032MB (7 pages)
- FGEF3032MF (36 pages)
- FFES3025LB (32 pages)
- FFED3015LW (2 pages)
- FFES3015LS (7 pages)
