Search
Directory
Brands
Bryant manuals
Air purifiers
GAPAB Perfect Air Air Purifier For Fan Coils 1620
Manual
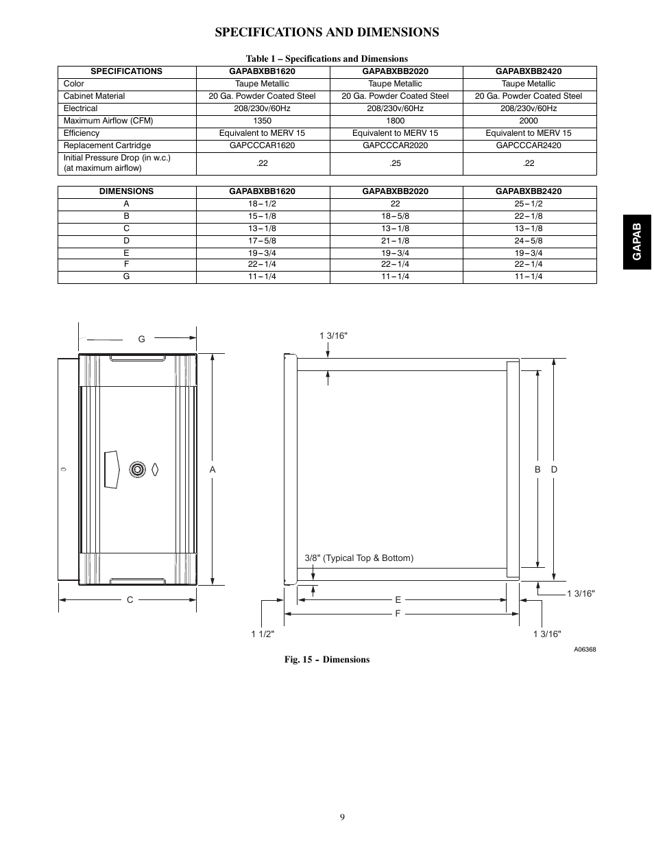
Specifications and dimensions – Bryant GAPAB Perfect Air Air Purifier For Fan Coils 1620 User Manual
Page 9
Text mode
Original mode
Specifications and dimensions | Bryant GAPAB Perfect Air Air Purifier For Fan Coils 1620 User Manual | Page 9 / 12
Pages:
1
…
7
8
9
10
11
12
wrong Brand
wrong Model
non readable
See also other documents in the category Bryant Air purifiers:
PERFECT AIR 2420
(12 pages)
MACA
(4 pages)
HUMBBBP2018-A
(8 pages)
GAPAAXBB2025
(10 pages)