Search
Directory
Brands
AAON manuals
Air equipment
RQ-006
Manual
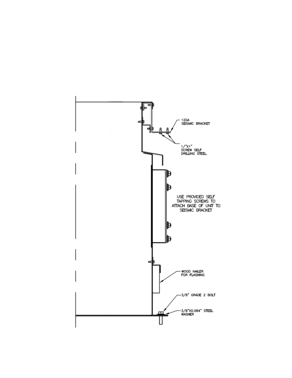
Seismic curb installation, Figure 9 - solid bottom seismic curb with filters – AAON RQ-006 User Manual
Page 35
Text mode
Original mode
Seismic curb installation, Figure 9 - solid bottom seismic curb with filters | AAON RQ-006 User Manual | Page 35 / 84
Pages:
1
…
33
34
35
36
37
…
84
wrong Brand
wrong Model
non readable
This manual is related to the following products:
RQ-005
RQ-004
RQ-003
RQ-002
See also other documents in the category AAON Air equipment:
H3-A
(28 pages)
H3-A
(72 pages)
RN-006
(116 pages)
RN-014
(44 pages)
SA-023
(64 pages)
RL Series
(16 pages)
M2-005
(100 pages)
M3-032
(72 pages)
RL-045
(84 pages)
F1-024
(60 pages)
RM-002
(16 pages)
RM-002
(24 pages)
HB-002
(32 pages)
RK-02
(16 pages)
RK-02
(24 pages)
HA-04
(19 pages)