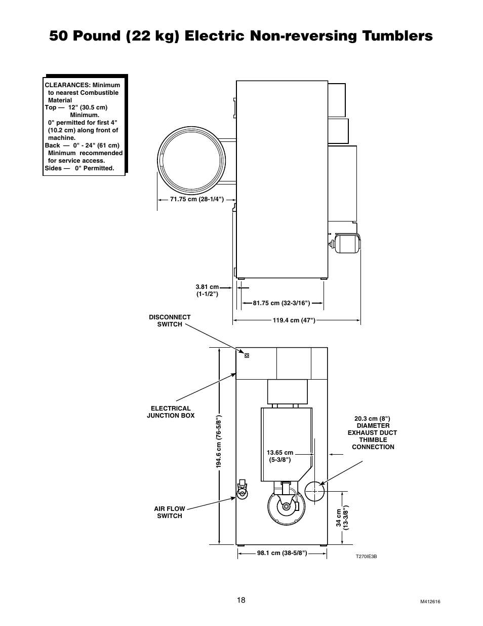
50 pound (22 kg) electric non-reversing tumblers – Speed Queen Drying Tumblers SCB50EG User Manual
Page 20
This manual is related to the following products:
- Drying Tumblers JCB75CG Drying Tumblers SC75CSH Drying Tumblers SC50CG Drying Tumblers JCB30WE Drying Tumblers JCB30CSH Drying Tumblers JC50EG Drying Tumblers SC75CG Drying Tumblers JCB50CG Drying Tumblers SCB50CSH Drying Tumblers SCB30CSL Drying Tumblers JCB30CSL Drying Tumblers JCB30XG Drying Tumblers SC50CE Drying Tumblers JCB50CSH Drying Tumblers JCB75CE Drying Tumblers JC75CSH Drying Tumblers JCB30CG Drying Tumblers SCB30CE Drying Tumblers JCB50CE Drying Tumblers JCB30CE Drying Tumblers SCB30CG Drying Tumblers SCB75CG Drying Tumblers SC50EG Drying Tumblers JC75CG Drying Tumblers SC50CSH Drying Tumblers JC75CE Drying Tumblers SCB50CE Drying Tumblers SCB75CSH Drying Tumblers JC50CE Drying Tumblers JC50CSH Drying Tumblers SCB75CE Drying Tumblers SCB30XG Drying Tumblers JC50CG Drying Tumblers SC75CE Drying Tumblers JCB75CSH Drying Tumblers SCB50CG Drying Tumblers JCB50EG Drying Tumblers SCB30WE
